
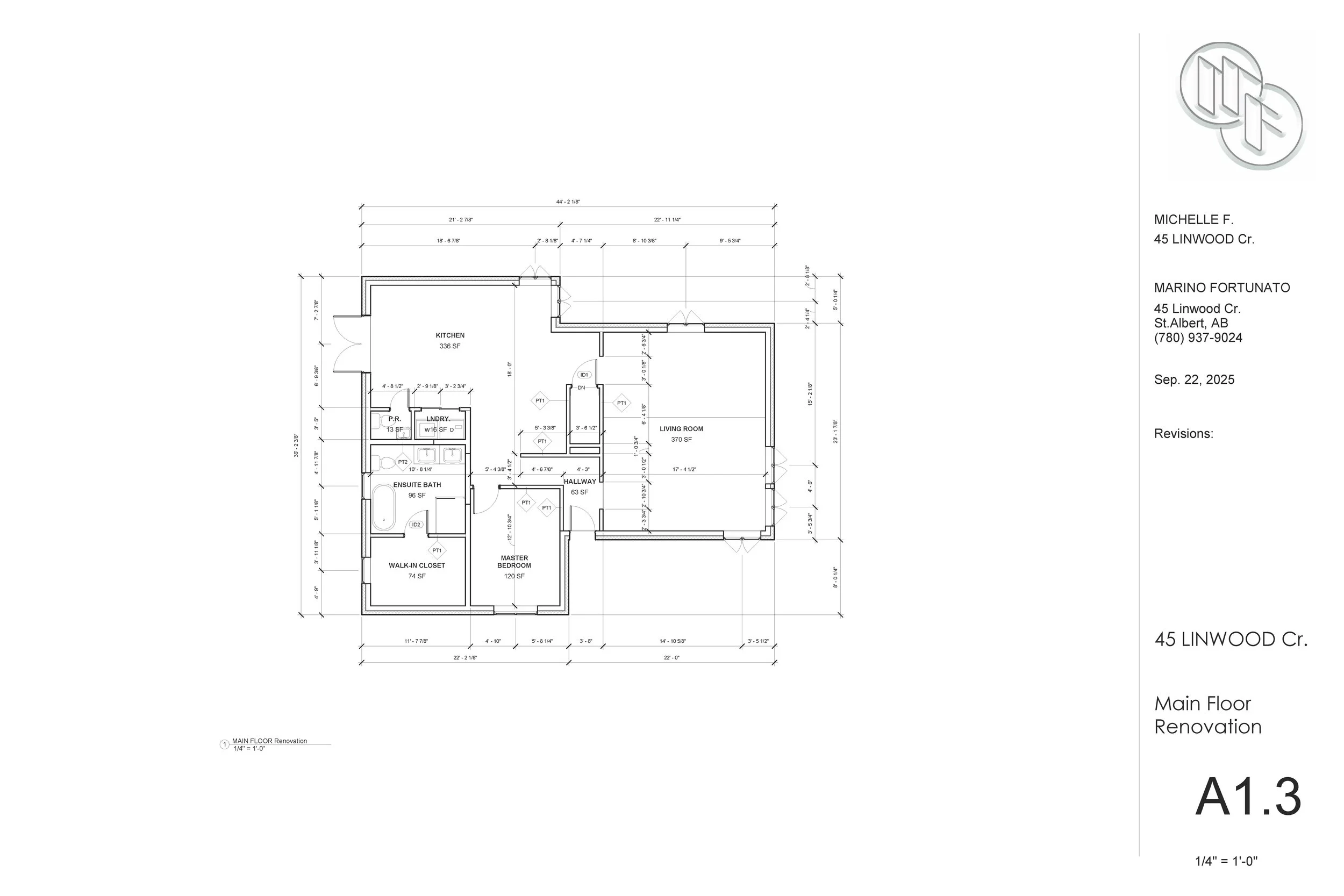
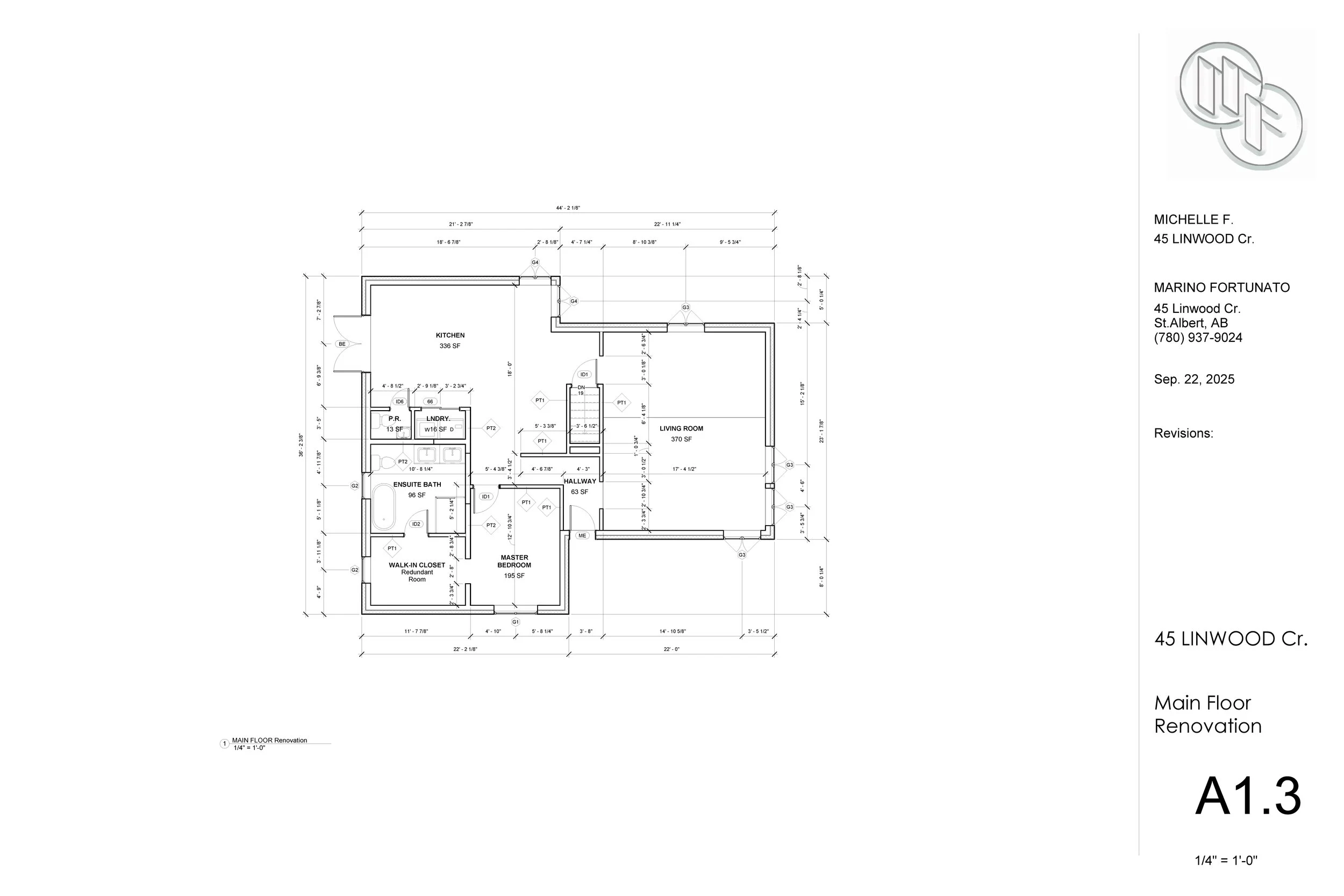
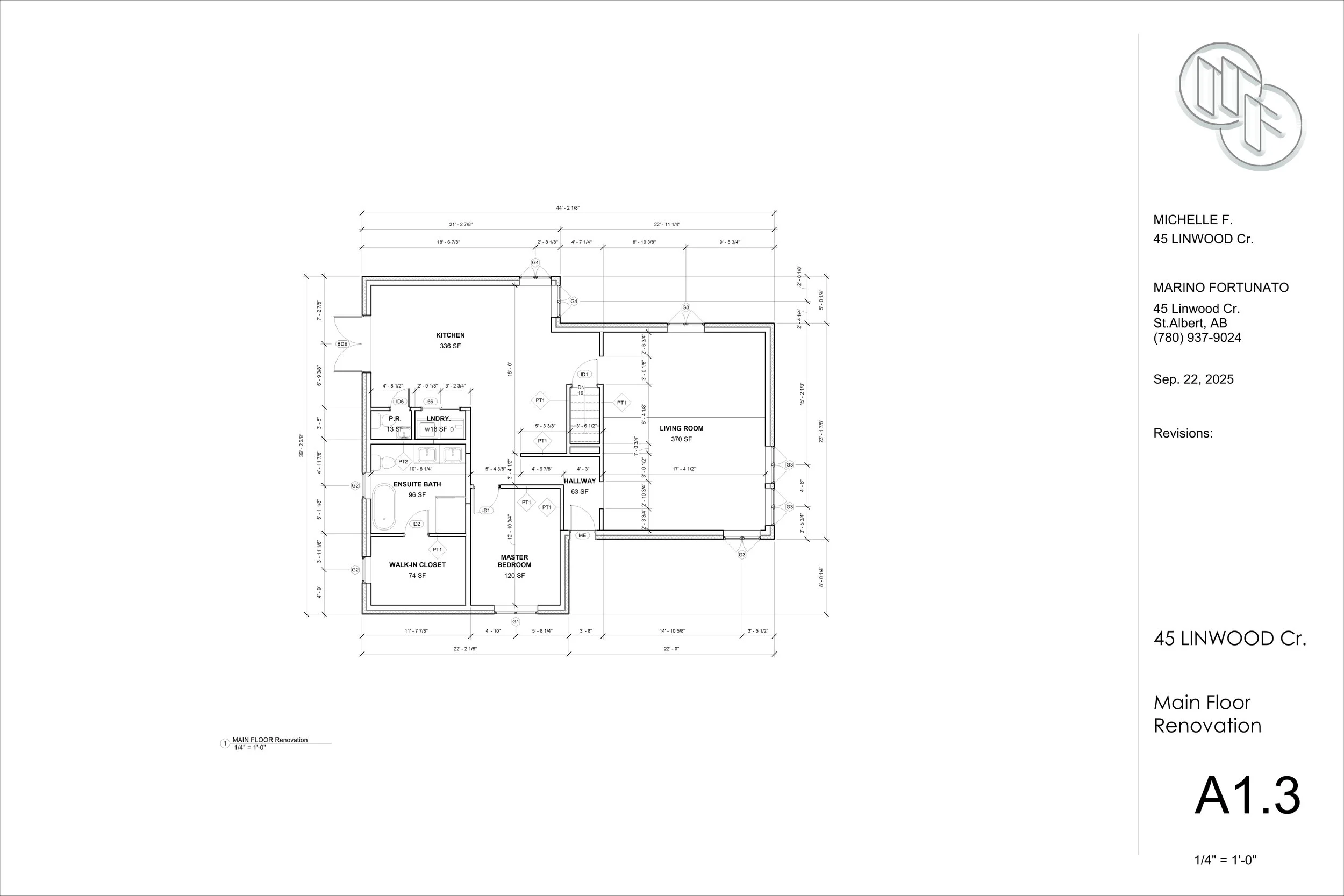
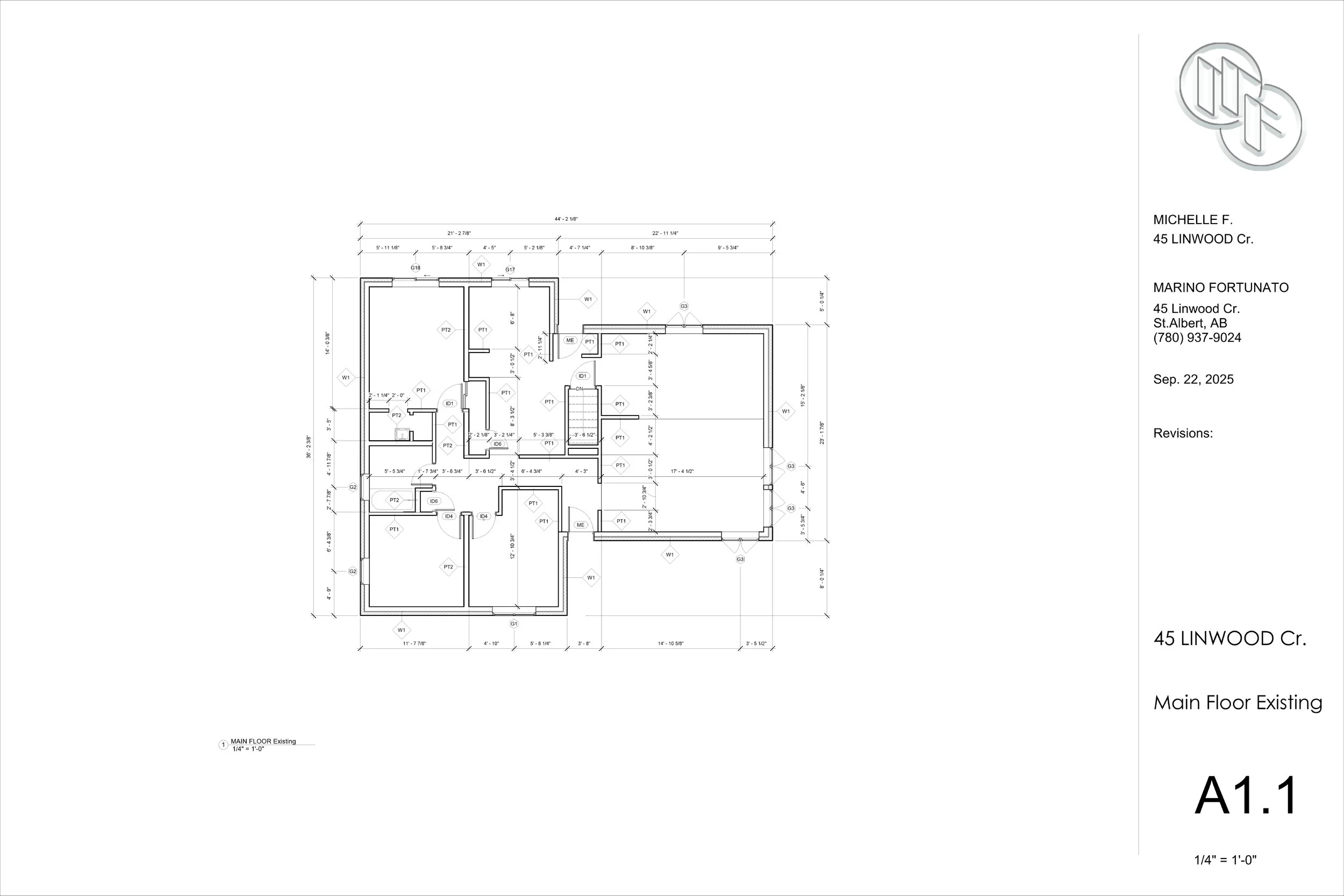
45 LINWOOD CRESCENT



The effective thermal resistance of the home’s exterior wall-assembly was increased 5.56 RSI/ 31.56 R, by adding XPS insulation and new siding.
Original Wall-Assembly
Renovated Wall-Assembly





Original Wall-Assembly
Renovated Wall-Assembly